-
Köpa
Köpa -
Sälja
Sälja - Hitta bostad
- Skapa bevakning
- Hitta mäklare
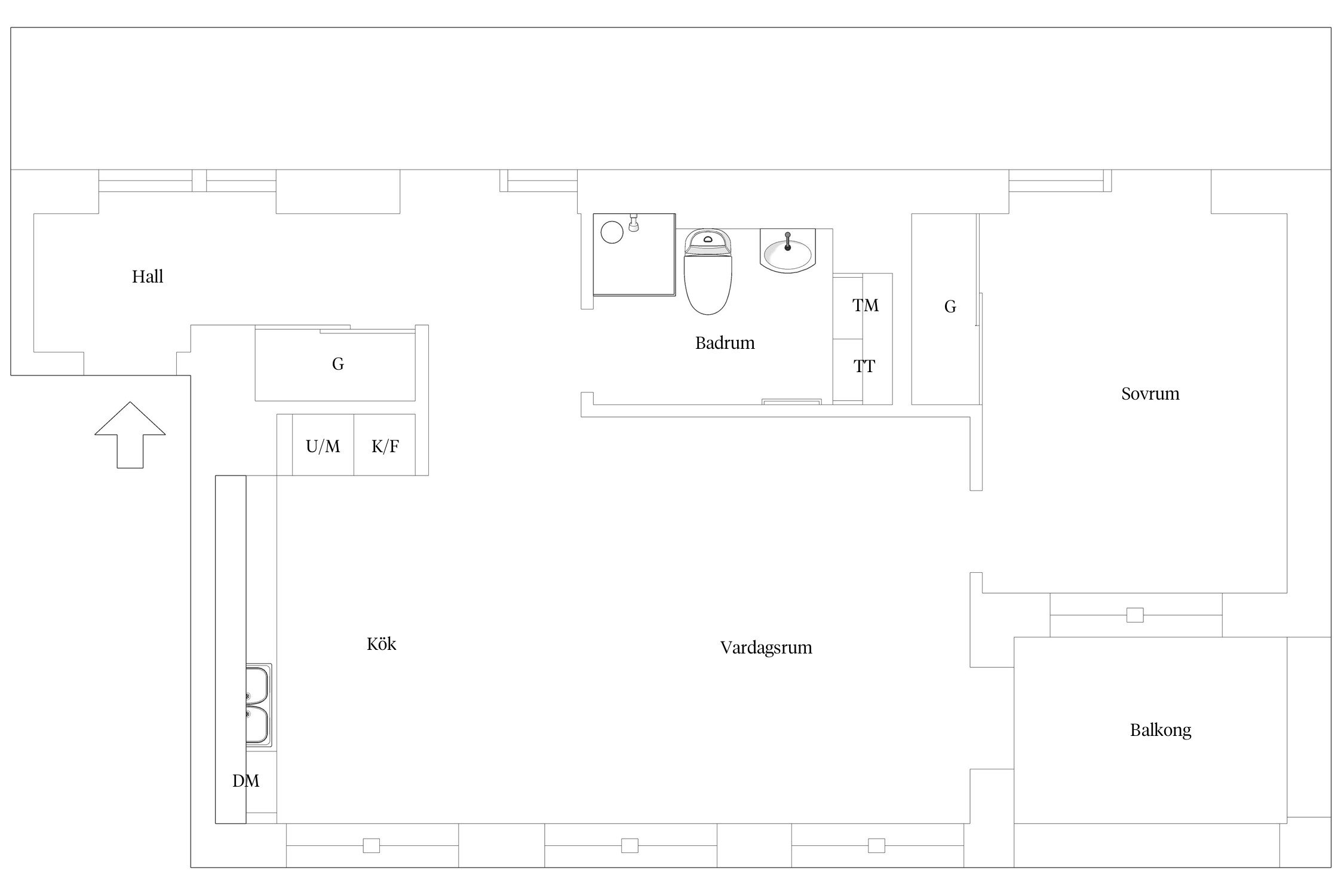
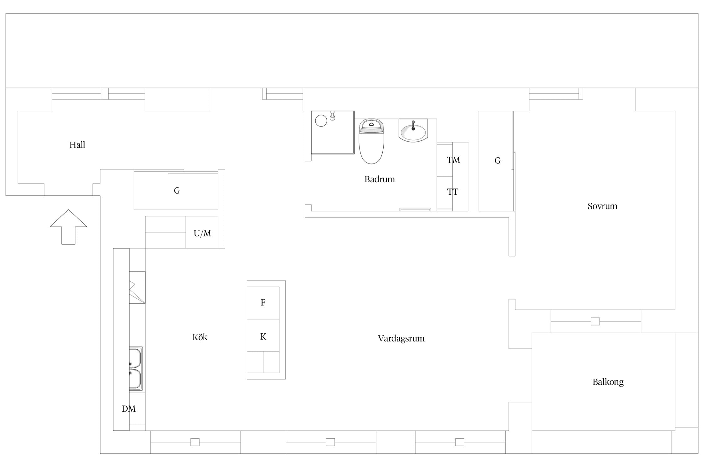
Ljus 2:a med inglasat uterum i populärt 55+ boende på Limhamn
Malmö
*Areakälla enligt bostadsrättsföreningens mäklarbild/utdrag ur lägenhetsregister.
Vänligen klicka för anmälan
Ljus och välplanerad 2:a med inglasat uterum i populärt 55+ boende i Limhamn – nära hav, service och kommunikationer.
Välkommen till denna ljusa och välplanerade 2:a om 54 kvm på attraktiva Portvaktsgatan 10 i Limhamn! Här bor du i ett lugnt och trivsamt område med närhet till både hav, service och goda kommunikationer.
Bostaden erbjuder en smart planlösning med generösa sällskapsytor och ett fint ljusinsläpp som skapar en luftig och inbjudande känsla. Det rymliga vardagsrummet blir en naturlig samlingspunkt, med plats för både soffgrupp och matbord. Köket är funktionellt och stilrent, med bra arbetsytor och förvaring.
Sovrummet är rofyllt och väl tilltaget, med god plats för dubbelsäng och garderober. Det helkaklade badrummet är fräscht och praktiskt utformat.
Som pricken över i:et erbjuds ett härligt inglasat uterum – ett extra rum att njuta av stora delar av året. Här kan du koppla av med en kopp kaffe, umgås med vänner eller skapa din egen gröna oas.
Bostaden är belägen i populära Brf Vågmästaren – ett trivsamt och välskött 55+ boende med fokus på gemenskap, trygghet och bekvämlighet. Här erbjuds en lugn livsstil med möjlighet till social samvaro för den som önskar, samtidigt som du har din egen privata oas att dra dig tillbaka till.
Ett perfekt boende för dig som söker något bekvämt och inflyttningsklart i ett av Limhamns mest omtyckta områden!



*Areakälla enligt bostadsrättsföreningens mäklarbild/utdrag ur lägenhetsregister.
Inglasad balkong
34 st garageplatser finns att hyra. Separat kö tillämpas.
Bostadsrättens indirekta nettoskuldsättning baseras på föreningens skulder/lån minus föreningens räntebärande tillgångar och likvida medel. Beräkningen är gjord och baseras enbart på den senaste tillgängliga årsredovisningen. För mer information kontakta ansvarig fastighetsmäklare.
*Betalas av köpare
Bonum BRF Vågmästaren på Limhamn bildades 2015 och byggnaden stod klar 2018. Föreningen äger fastigheten Portvaken 1 i Malmö kommun. Föreningen består av 50 st lägenheter fördelat på 3 st 1 rok, 19 st 2 rok, 19 st 3 rok, och 9 st 4 rok samt 34 st garageplatser.
Riksbyggen sköter förvaltningen av föreningen. Brf Vågmästaren på Limhamn är ett 55+ boende, vilket betyder att minst 1 av bostadsrättsinnehavarna måste vara över 55 år i övrigt är det inget som skiljer sig från en vanligt bostadsrättsförening.
I samband med överlåtelsen genomför föreningen en tillsyn av lägenheten tillsammans med köpare och säljare.
Föreningen har för avsikt att höja avgiften med ca 2 % årligen på rekommendation av Riksbyggen, kan komma att ändras utifrån det ekonomiska läget.
Avgiftshöjning med 6% 2026-01-01
Fastigheten är fullvärdesförsäkrad i Folksam. Hemförsäkringen bekostas av bostadsrättsinnehavaren, men bostadsrättstillägget ingår i föreningens fastighetsförsäkring.
34 st garageplatser finns att hyra. Separat kö tillämpas, finns lediga platser. Avgift 900kr ink moms
Föreningen har TELE2, basutbudet ingår
Föreningen har en fin gård med sittgrupper, grillplats och boulebana.
Det finns 1 gemensam tvättstuga med grovtvättmaskin, torkskåp och mangel.
Föreningen har även en festlokal (gratis att hyra) och en gästlägenhet (400 kr/dygn) att hyra.
Bokning sker via digitalt bokningssystem.
För mer information om föreningen ta gärna kontakt med riksbyggen som sköter den ekonomiska förvaltningen.
Malmö är Sveriges tredje största stad, med över 300 000 invånare. Tillväxten märks också på bostadsmarknaden, då nya hus hela tiden byggs upp runt om i staden. På några ställen har före detta industriområden gjorts om till mycket attraktiva platser att bo på. Ett exempel på detta är Dockan och Västra Hamnen.
I Malmö finns också ett stort utbud av kultur – och fritidsaktiviteter. Runt staden kan du hitta flera fina badplatser och på knappt femton minuter tar du dig till Köpenhamn via Öresundsbron. Sturups flygplats har många internationella avgångar varje dag. Den som vill shoppa kan välja mellan flera stora köpcentra eller uppsöka de lite mer exklusiva butikerna inne i staden. Du kan också hitta lugn och avkoppling i de grönskande parkerna, eller uppleva pulserande stadsliv och alla nöjen du kan önska dig.
Vill du köpa, sälja eller värdera bostad i Malmö? Välkommen att kontakta Bjurfors mäklare på Malmö City, Malmö Väster, Malmö Öster eller på Limhamn. Passa också på att anmäla dig till vår kostnadsfria söktjänst Boagenten som hjälper dig att hitta ditt drömboende.
Kontakta mäklaren om du behöver hjälp att ta fram en boendekalkyl.
När du köper din bostad genom Bjurfors kan du ansöka om bolån till en förmånlig ränta hos våra banksamarbetspartners Söderberg & Partners och SEB.
Vänligen klicka för anmälan
Ansvarig mäklare