-
Köpa
Köpa -
Sälja
Sälja - Hitta bostad
- Skapa bevakning
- Hitta mäklare
Högt upp i huset med balkong i västerläge
Hisings Backa, Göteborg
*I avgiften ingår vatten, Telia-triple-play (internet) samt tillgång till förråd. Utöver månadsavgiften tillkommer ett obligatoriskt tillägg om 574 kr/mån för värme. Den totala kostnaden blir då 4 959 kr. Elkostnad tillkommer och läses av månadsvis.
**Areauppgifter enligt bostadsrättsföreningen
Bokad visning. Du kan även ringa Bjurfors Bokningscenter 031-761 79 50. Välkommen!
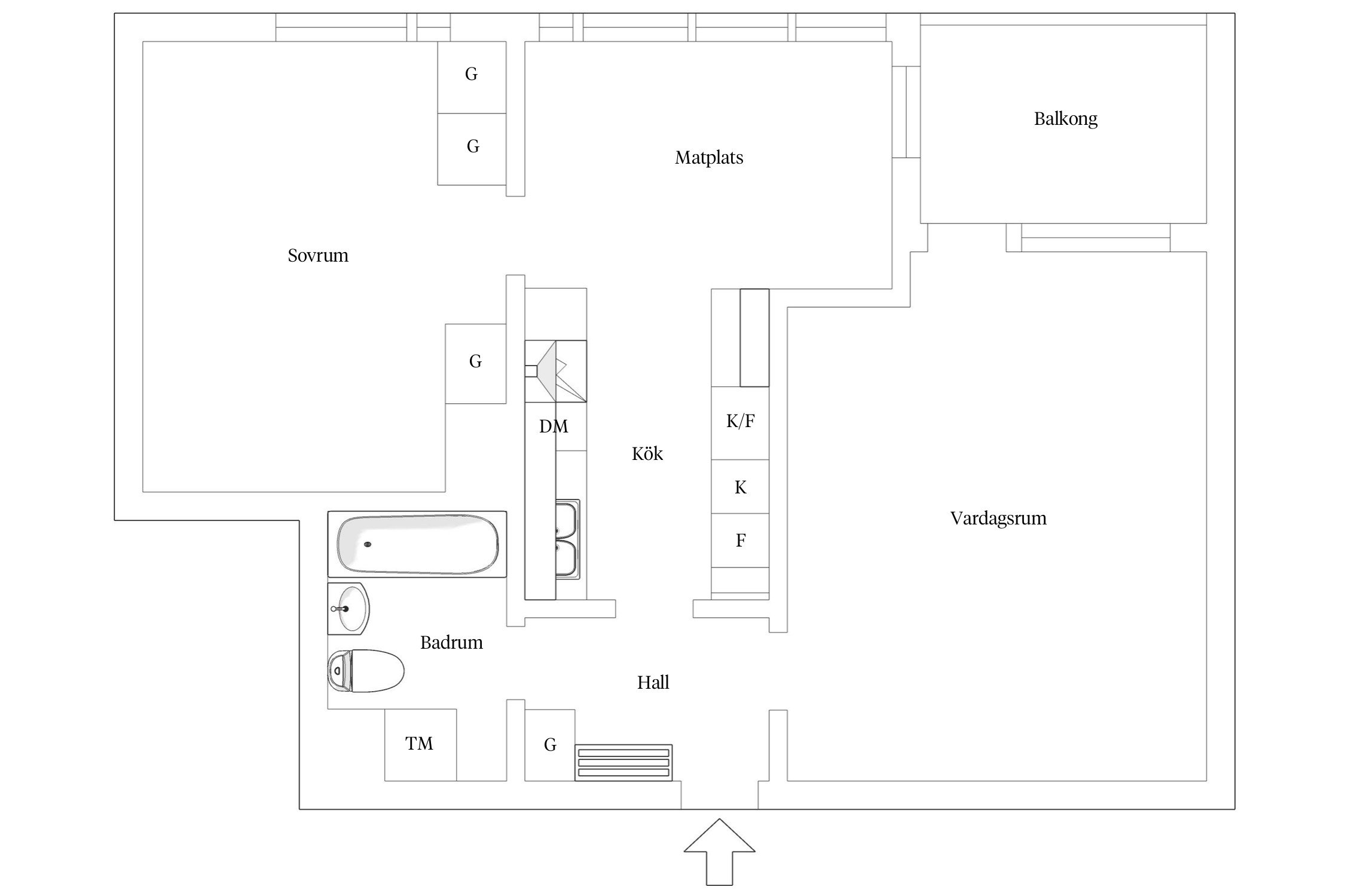
Välkommen till denna rymliga och renoverade tvåa med balkong och hiss i huset. Här bor man i ett lugnt och omtyckt område med närhet till allt.
Med ett fint läge i föreningen finner man denna trivsamma bostad som präglas av ett härligt ljusinsläpp och en effektiv planlösning. Stora fönsterpartier skänker ljus till de generösa ytorna. I bostaden finner vi ett nytt kök med god förvaring och en trevlig matplats intill det stora fönsterpartiet. Intill ligger vardagsrummet som är praktiskt planerat med utgång till möblerbar balkong som vetter mot den grönskande innergården i härligt västerläge. Utöver detta finns även ett rofyllt sovrum samt ett nytt badrum.
Här bor man i en attraktiv Riksbyggenförening med stora grönytor och närhet service och goda kommunikationer.
Du välkomnas in i en trivsam och ljus hall med plats för ytterkläder och skor samt förvaring i garderober. Ljusa fina ytskikt och väggar samt mörkt golv som löper vidare in i köket.
Köket är fint renoverat och funktionellt planerat med vita skåpsluckor samt vitrinluckor och bra arbetsytor. Ovan arbetsbänken sitter ljust kakel. Här finns spishäll, ugn, fläkt, diskmaskin samt fullstor kyl och frys. Framför de fantastiska fönsterpartiet finns plats för stor matplats.
Vardagsrummet intill är stort och lättmöblerat med utrymme för både soffgrupp och övrigt möblemang. Härifrån nås bostadens balkong, som blir en naturlig förlängning av rummet och erbjuder en trivsam plats för utemöbler och avkoppling.
Sovrummet är lugnt beläget och nås från köket. Här ryms dubbelsäng samt god förvaring i skjutdörrsgarderober, vilket ger utmärkta förvaringsmöjligheter.
I anslutning till hallen ligger det helkaklade och moderna badrummet. Stilrent utformat och utrustat med wc, handfat med kommod, spegelskåp, dusch bakom vikväggar samt tvättmaskin för extra bekvämlighet i vardagen.



*Areauppgifter enligt bostadsrättsföreningen
I avgiften ingår vatten, Telia-triple-play (internet) samt tillgång till förråd. Utöver månadsavgiften tillkommer ett obligatoriskt tillägg om 574 kr/mån för värme. Den totala kostnaden blir då 4 959 kr. Elkostnad tillkommer och läses av månadsvis.
0,10476%
Nettoskuldsättningen är en uträkning baserad på information som föreningen har tillhandahållit. Den är eventuellt baserad på fel andelstal och kan därför vara felaktig
Detta är enbart riktvärden och kan variera beroende på avtal och förbrukning
*Betalas av köpare
BRF Blå staden består av sammanlagt 881 lägenheter, 10 lokaler, 759 garage/parkeringsplatser, 6 MC-platser och 18 moped-platser. Föreningen innehar tomträtten till tomterna Backa 69:1-13 med adresserna Olshammarsgatan 2-14, Övralidsgatan 1-27, Karolinernas gata 1-3, samt Heidenstams gata 1-13. Tomträttsavtalet förnyades 2019-10-21.
Styrelsen är aktiv och mycket engagerad. Föreningen anordnar olika aktiviteter för att öka medlemmarnas boendekvalitet.
På föreningens webbplats www.blastaden.se finns rikligt med aktuell information.
Årsavgiften höjdes med 3% från 1 juli 2025. Orsaken är högre räntor samt höjda avgifter för bland annat fjärrvärme, vatten och sophämtning.
Information om avgiftshöjning lämnas i juni varje år.
För mer detaljerad information om ekonomi och renoveringar, se årsredovisning.
Fastigheterna är fullförsäkrade i Folksam. Hemförsäkring bekostas individuellt av bostadsrättsinnehavarna och bostadstillägg ingår i föreningens fastighetsförsäkring.
Genomförda:
2018- Stamrenovering av tappvatten (påbörjad)
2016: Säkerhetsdörrar monteras oktober/november
2016: upprätning avloppsledning
2016: Injustering av ventilation
2015: Kollektivt bredband (Telia triple-play)
2013-2018: Frivillig badrumsrenovering
2013-2018: Underhåll av loftgångar
2013-2014: Färdigställande av hissar
2013-2014: Målning av tak
2013-2014: Utbyte lägenhetsdörrar etapp 1
2009-2011: Rörinfodring av avloppsstammar, s.k. relining
2008: Individuell elmätning, målning av fönster, underhåll av loftgångar, dränering
2022: Renovering av tappvattenledningar
2022: Förnyar maskinparken i våra tvättstugor och utökar tvättiderna
2023: Samtliga lekplatser ska renoveras från grunden.
2023: Ombyggnation av lägenheterna i det tidigare serviceboendet på Övralidsgatan 25-27 startar under hösten.
Pågående och framtida renoveringar och underhållsarbeten:
Inom 5 år - Se över ventilation i trappuppgångarna samt utföra renovering av betongen på balkongerna.
Föreningen följer en underhållsplan för att säkra underhållet av fastigheten.
Se årsredovisning för mer information.
Föreningen har totalt 759 bilparkeringsplatser.
Parkeringsplats utan el kan hyras för ca 250 kr/mån, parkeringsplats med el kan hyras för ca 300 kr/mån, kallgarage kan hyras för ca kr/mån och varmgarage för ca 400 kr/mån. Föreningen har även 6 MC-platser samt mopedgarage.
Det finns 8 stycken platser för elbilsladdning. Du ställer dig där när du behöver ladda, och flyttar sedan tillbaka till din ordinarie plats. Kort för laddning tillhandahålls av föreningen.
Parkeringarna administreras av Riksbyggen 0771-860 860.
Föreningen har ett kollektivavtal med Telia sk triple-play dvs bredband (500/500 Mb), tv (minst 22 kanaler, se Telia utbud Lagom) och ip-telefoni via fiber till varje lägenhet vilket ingår i hyran. Extra nätverksuttag ska vara installerat i lägenheten (hall och vardagsrum). Bostadsrättsinnehavaren måste själv anmäla till Telia att denne vill ansluta sig till tjänsterna, man kan då kontakta Telia på 020-202070.
Föreningen har två gånger fått utmärkelsen "Riksbyggens vackraste trädgård". Intill Blå Staden finns tennis- och fotbollsplan.
Till varje lägenhet följer ett separat förråd. I föreningen finns bastu (Olshammarsgatan 10), cykelförråd, barnvagnsförråd, källarförråd, gym (Karolinernas gata 1), biljardrum (Olshammarsgatan 10), samlingslokal och tvättstuga med torkrum. Även festlokal/pub (Olshammarsgatan 10), gästlägenhet med 6 bäddar (Övralidsgatan 15), vävstuga, snickarrum och biltvätt.
Vi har en nyrenoverad ”pub” som kan hyras för fester och en gästlägenhet med flera bäddar. Medlemmarna kan även möjlighet att använda föreningens bastun på öppna eller bokade tider.
I närheten finns tre förskolor, varav en på Övralidsgatan. En annan fem minuters promenad, en tredje knappt 10 minuters promenad härifrån.
Blå Staden har nyligen skrivit avtal med Bredablick facility services. En fastighetsförvaltare med mycket gott rykte.
Föreningen uppmärksammar att originalbadrum saknar fungerande tätskick och riskerar därför att bli fuktskadat. Boende rekommenderas därför renovering eller användning av duschkabin.
Informationen ovan är tagen från hemsida, årsredovisning samt stadgar. Vi ansvarar ej för att uppgifterna från dessa källor är korrekta utan råder dig som köpare att kontrollera fakta som är av vikt för dig.
SHOPPING, SPA OCH NATUR PÅ HEMMAPLAN
Bara en kvart från centrala Göteborg bor du i expansiva Hisings Backa. Området har ökat i popularitet de senaste åren på grund av den intensiva utvecklingen. Samtidigt är naturen aldrig långt borta.
STORT UTBUD AV SHOPPING
Hisings Backa är beläget på ön Hisingen och är ett område som har lika nära till Göteborgs centrum som till natur och landsbygd. Området har en blandad bebyggelse med flerfamiljshus, radhus och villor. Var du än bor i området når du lätt Hisings Backas tre stora köpcentrum – Brunnsbotorget, Bäckebols köpcentrum och Selma Lagerlöfs Torg. Den sistnämnda med tillhörande kvarter har genomgått en stor omvandling de senaste åren. Torgets strategiska position utmed E6 och utbudet av dagligvaror och nischade butiker gör att många hittar hit. Lockar kultur mer finns här både bibliotek och kulturhus. Kultur är en stor del av Hisings Backa och du har den på flera ställen. I Brunnsbo finns Brunnshuset och kulturskolans fina lokaler. Brunnsboskolan har en kulturprofil och på Skälltorpsskolan finns Svenska Balettskolan som lockar elever från hela Västsverige.
Sankt Jörgen var tidigare ett stort sjukhusområde som har byggts om till bostäder. Här har du också välkända designhotellet Sankt Jörgen Park Resort. Resorten erbjuder konferens och spamöjligheter samt en golfbana med 18 vackra hål i parkmiljö. För den sportintresserade har Hisings Backa många olika aktiviteter som fotboll, gym, ridning och framförallt natursköna promenadvägar.
TA DIG ENKELT TILL STAN
Hisings Backa har många kommunala förskolor och föräldrakooperativ, ofta inom gångavstånd. För de äldre barnen finns flera grundskolor och friskolor att välja på. I närliggande Lundby hittar du gymnasieskolor med olika inriktningar.
De goda kommunikationerna tar dig snabbt in till centrala Göteborg. Flera busslinjer passerar Hjalmar Brantingsplatsen där spårvagnar tar dig vidare till Göteborgs olika stadsdelar. Många busslinjer som passerar genom Hisings Backa går vidare till Bäckebols Köpcentrum där bland annat IKEA ligger. För dig som hellre cyklar finns det bra cykelvägar i området.
Köpa, sälja eller värdera bostad i Hisings Backa? Kontakta våra Bjurfors mäklare på Hisingen! Passa också på att anmäla dig till vår kostnadsfria söktjänst Boagenten som hjälper dig att hitta ditt drömboende.
Kontakta mäklaren om du behöver hjälp att ta fram en boendekalkyl.
När du köper din bostad genom Bjurfors kan du ansöka om bolån till en förmånlig ränta hos våra banksamarbetspartners Söderberg & Partners och SEB.
Bokad visning. Du kan även ringa Bjurfors Bokningscenter 031-761 79 50. Välkommen!
Ansvarig mäklare