-
Köpa
Köpa -
Sälja
Sälja - Hitta bostad
- Skapa bevakning
- Hitta mäklare
Hörnbalkong i söderläge och potential för tre rum!
Hisings Backa, Göteborg
*I avgiften ingår vatten. Obligatoriska tillägg tillkommer för bredband/kabel-TV om 62 kr samt värmeavgift om 844 kr. Den totala kostnaden blir då 5 435 kr.
**Areauppgifter enligt bostadsrättsföreningen.
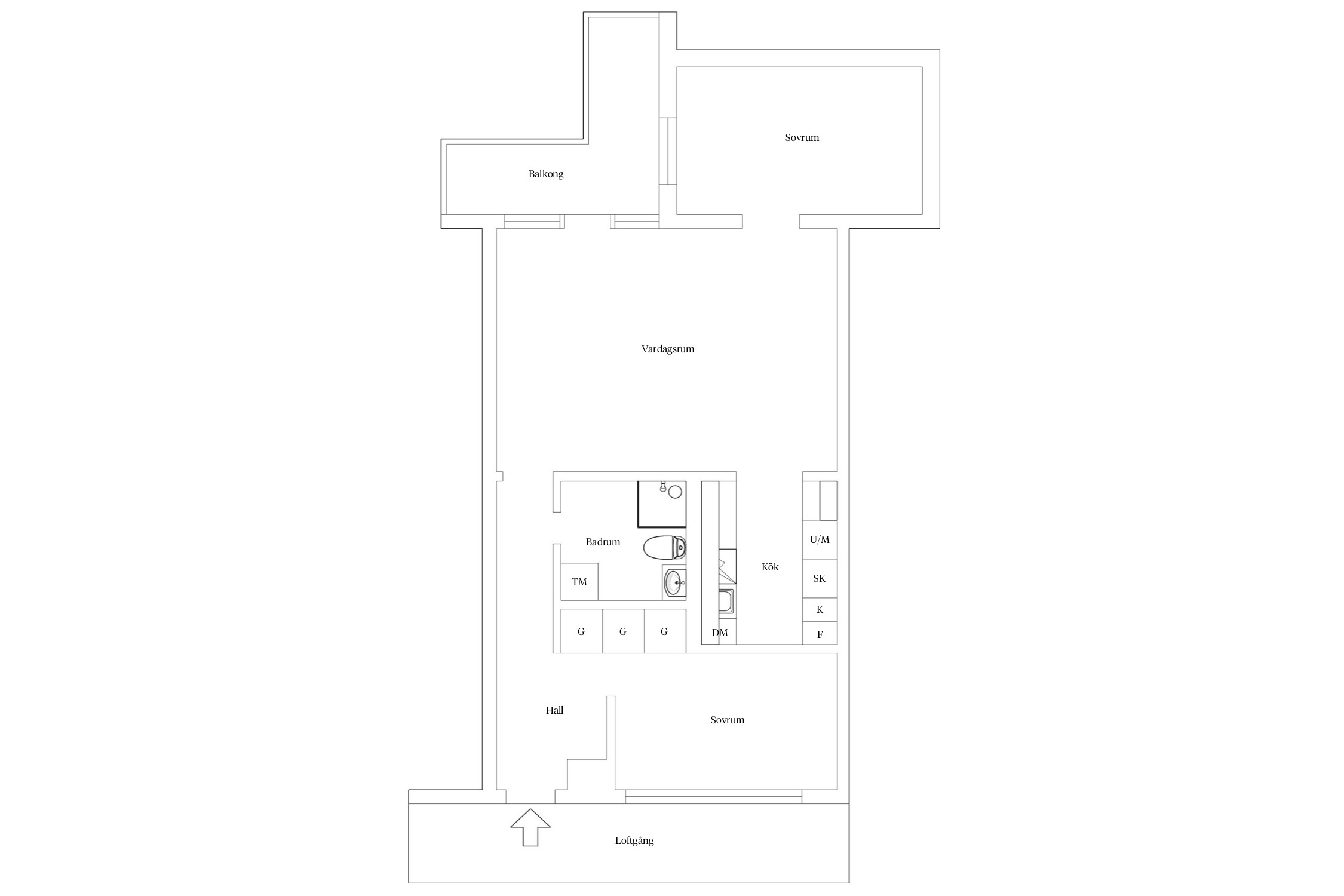
Välplanerad tvåa om ca 69 kvm som kan nyttas som en trea. Bostaden är en ljus genomgångslägenhet med rofylld balkong i härligt söderläge.
Välkommen till Sagogången 45. Du välkomnas till en välplanerad och ljus genomgångslägenhet med stor och rofylld balkong i söderläge. Vardagsrummet är lättmöblerat och de stora fönstren mot söder ger rummet ett härligt ljus. Det stilrena köket erbjuder gott om förvaring och arbetsyta och invid fönstret finns gott om yta och en naturlig matplats för trevliga middagar. Det rymliga sovrummet har plats för en större säng och förvaringsmöbel. Badrummet är helkaklat och renoverades 2020. Bostaden kan med enkelhet göras om till en trea.
Stabil förening med grönskande gårdar och lekplatser. I närområdet finns dessutom förskola, skola och goda kommunikationer till City. På gångavstånd ligger Selma Lagerlöfs torg som expanderar med både utbud av butiker samt bostäder, en växande stadsdel.
Välkommen till Sagogången 45. Här finner du en välplanerad tvåa i härligt söderläge med rofylld balkong. Nyttjas idag som en stor tvåa med kontorsyta. Grannar med samma planlösning har byggt om till trea (se eventuell möjlig alternativ planlösning) vilket kan vara ett alternativ för den som planerar långsiktigt.
Hallen har plats för avhängning samt gott om förvaring i de tre stilrent inbyggda garderoberna. Klinker på golvet gör hallen lättskött.
Köket är stilrent med mycket arbetsyta och skafferi. I köket finner du bland annat diskmaskin, större spishäll samt ugn och micro i smidig arbetshöjd. Stor kyl och fryser rymmer mycket mat samt har en inbyggd ismaskin. Intill köket finns en yta där det idag ryms en kontorshörna och fåtölj samt förvaring. Denna yta är flexibel och kan rymma en dagbädd eller liknande vid besök. Annars är den perfekt för dig som ofta jobbar hemifrån!
Vardagsrummet rymmer större soffa, tv- möbel samt stort matbord för cirka 8-10 personer. Det öppningsbara fönstret mellan kök och vardagsrum gör att det går att socialisera i mellan men underlättar också vid servering. I vardagsrummet finner du vacker originalparkett och utgång till den härliga balkongen i söderläge. Utrymmet känns luftigt på grund av flera fönster.
Sovrummet angränsar vardagsrummet och rymmer en större säng samt förvaringsmöbel.
Badrummet är helkaklat och renoverades i samband med föreningens stamrenovering 2020 i vitt och grått. Duschväggen är i modern industristil och sticker ut! En kombinerad tvätt och tork maskin underlättar vardagen tillsammans med avlastningsyta ovanför.



*Areauppgifter enligt bostadsrättsföreningen.
I avgiften ingår vatten. Obligatoriska tillägg tillkommer för bredband/kabel-TV om 62 kr samt värmeavgift om 844 kr. Den totala kostnaden blir då 5 435 kr.
Andelstal kapital: 0,15152%
Nettoskuldsättningen är en uträkning baserad på information som föreningen har tillhandahållit. Den är eventuellt baserad på fel andelstal och kan därför vara felaktig
Detta är enbart riktvärden och kan variera beroende på avtal och förbrukning
*Betalas av köpare
Riksbyggen Brf Sagogången bildades 1962. Bostadshusen byggdes 1967-71. Föreningen består av 506 bostadsrättslägenheter med adresserna Sagogången 1-57 och 2-54. Föreningen innehar tomträtten till fastigheterna Backa 41:1-3, 41:6-9 samt 866:740-741 och 766:405 med avtal som löper fram till 2028. Dessutom innehar föreningen nyttjanderätt för del av stadsägorna nr 13956 och 13483.
Brf Sagogången är en aktiv förening som anordnar gymnastik, fotbollsspel, julfester, poängpromenader och boulespel. Även föreningens styrkemotionsrum är välbesökt.
För mer information se hemsida: www.sagogangen.se
Ingen höjning på bostadsavgiften. Värmeavgiften kommer ökas med 20%. (Kontrollerat 2025-06-16)
Föreningen har från och med juli 2021 tecknat ett kollektivt bostadsrättstillägg.
Utförda:
2024: Nybyggda lekplatser
2024: Byggt utegym
2019-2020: Stambyte badrum
2016: Fiber
2014-2015: Takreparation.
2012: Upprustning av lekplatser
2012: Svalgångar, balkonger och trappor
2003: Byte av fönster samt säkerhetsdörrar till alla lägenheter
Planerat:
Målning och lagning av trappor. Träpaneler och skärmväggar är i behov av byte samt målning av fasaden. Husgrunden behöver omfärgning och putsning vid behov.
Garageplats. Går att hyra för 565 kr/mån. Till garageplatsen är det separat kö.
Parkeringsplats. Går att hyra för 330 kr/mån. Mc-plats går att hyra. Det finns 4 stycken elplatser. Till mc-platserna är det separat kö. För aktuell information kring tillgången på parkeringsplatser kontakta Riksbyggen EKC på tel. 0771-860 860.
TV via Tele2 och fiber via Bahnhof. Föreningen har dragit in fiber via Bahnhof. Basutbudet som ingår i avgiften har hastigheten 250/250 Mbits/s. Önskas 1000/1000 Mbits/s kan detta tecknas mot ett tillägg på 99kr/månaden som faktureras direkt till varje hushåll.
Till lägenheten följer ett källarförråd. Det finns bastu, cykelförråd, barnvagnsförråd, mc-förråd, hobbyrum, gym och tvättstuga i föreningen.
Styrelsen vill träffa alla nya medlemmar för att lämna information om att bo i föreningen.
Informationen är hämtad från hemsidan, styrelsen och årsredovisning. Vi ansvarar inte för att informationen är korrekt utan råder dig att kontrollera det som är av betydelse.
SHOPPING, SPA OCH NATUR PÅ HEMMAPLAN
Bara en kvart från centrala Göteborg bor du i expansiva Hisings Backa. Området har ökat i popularitet de senaste åren på grund av den intensiva utvecklingen. Samtidigt är naturen aldrig långt borta.
STORT UTBUD AV SHOPPING
Hisings Backa är beläget på ön Hisingen och är ett område som har lika nära till Göteborgs centrum som till natur och landsbygd. Området har en blandad bebyggelse med flerfamiljshus, radhus och villor. Var du än bor i området når du lätt Hisings Backas tre stora köpcentrum – Brunnsbotorget, Bäckebols köpcentrum och Selma Lagerlöfs Torg. Den sistnämnda med tillhörande kvarter har genomgått en stor omvandling de senaste åren. Torgets strategiska position utmed E6 och utbudet av dagligvaror och nischade butiker gör att många hittar hit. Lockar kultur mer finns här både bibliotek och kulturhus. Kultur är en stor del av Hisings Backa och du har den på flera ställen. I Brunnsbo finns Brunnshuset och kulturskolans fina lokaler. Brunnsboskolan har en kulturprofil och på Skälltorpsskolan finns Svenska Balettskolan som lockar elever från hela Västsverige.
Sankt Jörgen var tidigare ett stort sjukhusområde som har byggts om till bostäder. Här har du också välkända designhotellet Sankt Jörgen Park Resort. Resorten erbjuder konferens och spamöjligheter samt en golfbana med 18 vackra hål i parkmiljö. För den sportintresserade har Hisings Backa många olika aktiviteter som fotboll, gym, ridning och framförallt natursköna promenadvägar.
TA DIG ENKELT TILL STAN
Hisings Backa har många kommunala förskolor och föräldrakooperativ, ofta inom gångavstånd. För de äldre barnen finns flera grundskolor och friskolor att välja på. I närliggande Lundby hittar du gymnasieskolor med olika inriktningar.
De goda kommunikationerna tar dig snabbt in till centrala Göteborg. Flera busslinjer passerar Hjalmar Brantingsplatsen där spårvagnar tar dig vidare till Göteborgs olika stadsdelar. Många busslinjer som passerar genom Hisings Backa går vidare till Bäckebols Köpcentrum där bland annat IKEA ligger. För dig som hellre cyklar finns det bra cykelvägar i området.
Köpa, sälja eller värdera bostad i Hisings Backa? Kontakta våra Bjurfors mäklare på Hisingen! Passa också på att anmäla dig till vår kostnadsfria söktjänst Boagenten som hjälper dig att hitta ditt drömboende.
Kontakta mäklaren om du behöver hjälp att ta fram en boendekalkyl.
När du köper din bostad genom Bjurfors kan du ansöka om bolån till en förmånlig ränta hos våra banksamarbetspartners Söderberg & Partners och SEB.
Ansvarig mäklare
Extra kontaktperson