Hoppa till innehåll
Välkommen

Barnvänligt med havsutsikt från balkong och terrass samt närhet till sköna havsbad.

  • Besiktigad

Göteborg

Lövskogsåsen 7

Pris:
6 250 000 kr
Antal rum:
5
Boarea:
133 kvm*
Tomtarea:
156 kvm
Typ:
Friliggande villa

*Areauppgifter enligt taxeringsinformationen
Den köpare som anser arean vara av betydelse för köpet bör därför vidta en uppmätning.

ANMÄL DIG TILL VISNING

  1. Bokad visning. Du kan även ringa Bjurfors Bokningscenter 031-761 79 50. Välkommen!

  2. Bokad visning. Du kan även ringa Bjurfors Bokningscenter 031-761 79 50. Välkommen!

Ansvarig mäklare

Samar Omarain

Fastighetsmäklare

Bjurfors Västra Göteborg
Samar Omarain

BOKA EN KOSTNADSFRI VÄRDERING

Barnvänligt med havsutsikt från balkong och terrass samt närhet till sköna havsbad.

Beskrivning

Med ett högt, soligt och lugnt läge ligger detta barnvänliga hus om ca 133 kvm boarea med närhet till havsbad vid klipporna i Lindås eller Killingsholmen. Inom promenadavstånd finns även barnvänliga Billdalsbadet med strand och badbryggor.

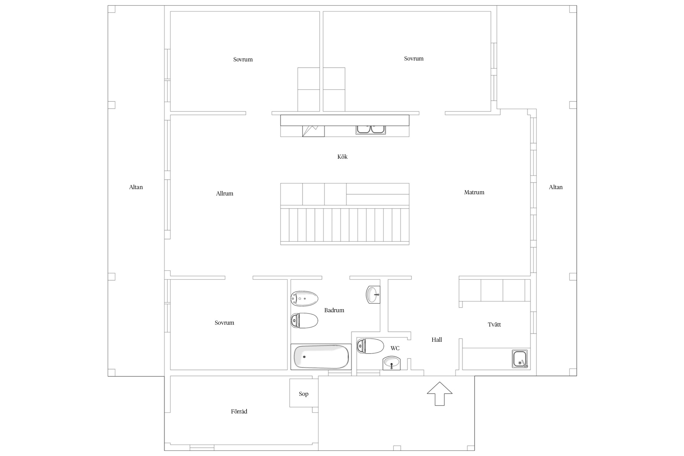
Bostaden välkomnar med en öppen och social planlösning där kök, matplats och vardagsrum samspelar på ett naturligt sätt. Köket är smart utformat med avskärmande skåpslösningar som skapar en lugn och praktisk arbetsyta, samtidigt som du behåller kontakten med resten av sällskapsytorna. Från matplatsen nås altanen, en härlig plats för morgonkaffet eller sommarens middagar i solen.
På entréplanet finns tre generösa sovrum som ger gott om plats för både familj och gäster. Här finns även ett badrum, separat wc, tvättstuga samt en praktisk klädkammare som underlättar vardagen. Planlösningen är genomtänkt för att skapa både funktion och trivsel i varje del av hemmet. Bostaden erbjuder ett utmärkt tillfälle för dig som vill sätta din egen prägel och utveckla hemmet över tid.

Läget är svårslaget, inom knappa fem minuters promenad når du busshållplatsen till Göteborgs centrum, kort cykelavstånd når du både klippbaden vid Lindås och Killingsholmen samt det barnvänliga Billdalsbadet med sandstrand och bryggor. Området bjuder på vackra promenadstråk, grönskande natur och närhet till havet som ger livskvalitet året om. I närheten finns service vid Kungsporten med bland annat matbutik, bageri, vård och restauranger.
För den friluftsintresserade ligger Sandsjöbacka naturreservat inom bekvämt avstånd med sina vandringsleder, skogar och små sjöar. Längs kusten kan du dessutom cykla hela vägen in till Göteborg via den gamla Säröbanan. Goda kommunikationer med expressbussar gör det enkelt att pendla både till Göteborg och Kungsbacka.

Planritning

Planlösning

Entréplan

Planlösning

Övreplan

Fakta om bostaden

Fastighetsbeteckning

Lindås 1:497

Information

Typ
Friliggande villa
Upplåtelseform
Friköpt
Pris
6 250 000 kr
Rum
5
Antal sovrum
3
Max antal sovrum
4
Boarea
133 kvm*
Tomtarea
156 kvm

*Areauppgifter enligt taxeringsinformationen
Den köpare som anser arean vara av betydelse för köpet bör därför vidta en uppmätning.

Byggnadssätt

Byggnadstyp
1 ½ plan
Byggår
1974*
Fasad
Stående träpanel
Grund
Plintgrund med träbjälklag
Stomme
Träregelverk
Uppvärmning
Direktverkande elradiatorer
Takbeklädnad
Sadeltak, eternitskivor
Ventilation
Självdrag
Fönster
2-3-glas isolerrutor

*1974

Fastigheten har två parkeringsplatser, en i garage samt en på utsidan med elstople.

Ombyggnad, Renoveringar

2026: Ny toalettstol i den lilla toaletten
2022: Duschkabin från 2022
2015-2016 : Tvättmaskin från 2015/2016.
2012 ca Ett fönster bytt på övre plan i sydlig riktning.
Fasad är löpande underhållen.

Övriga byggnader/utrymmen

Förråd

Besiktning

Besiktigad
Ja

Vatten/Avlopp

Kommunalt vatten, Kommunalt avlopp.

Parkering

Eget garage i länga.

Planbestämmelser

Stadsplan (1973-03-06)

Rättigheter/gemensamhetsanläggningar

Gemensamhetsanläggning: Göteborg lindås ga:1 ändamål: Vägar, Vattenförsörjning, Avloppsanläggning, Radio- TV och/eller tele, Elledning och/eller belysning, Grönområden, Garage och/eller parkering, Kvartersanläggning

Last: Officialservitut Tillträde, 14-ASK-3286A.6

Förmån: Officialservitut Tillträde, 14-ASK-3286A.5

TV/bredband

Fiber

Fiber

Ekonomi

Taxeringsvärde
5 015 000 kr
Byggnadsvärde
2 394 000 kr
Fastställt
2024
Kod
220, Småhusenhet, bebyggd
Fastighetsskatt/Avgift
10 425 kr

Driftskostnad (per år)

Personer i hushållet
2
Värme
29 962 kr
Försäkring
3 376 kr
Samfällighetsavgift
10 950 kr
Vatten/Avlopp
7 500 kr
Summa
51 788 kr
Elförbrukning
13 945 kWh/år

Driftkostnaderna gäller för 2024. Vi har gruppavtal för fiber, det kostar 125 kr/mån som läggs på faktureringen för samfällighetsavgiften, 2 ggr per år.
Närvaro på föreningens två arbetsdagar ger ett avdrag på 400 kr per tillfälle.
10250 + (12 * 125) - 800 = 10 950 om man är med på båda arbetsdagar och nyttjar bredband. I uppvärmningskostnaden ingår även hushållselen.

Energideklaration

Utförd
Ja
Energiklass
F
Energiförbrukning per kvm och år
100
Energideklarationsdatum
2025-10-28

Pantbrev

Det finns 8 st pantbrev uttagna om sammanlagt 1 270 000 kr

Om Göteborg

Att bo i Göteborg

Göteborg är Sveriges näst största stad och den expanderar hela tiden. Staden har ett fint läge på västkusten vid Göta älvs mynning. Det salta västerhavet erbjuder många härliga badplatser. Här finns också en levande skärgård med åretruntboende. Göteborg är även känd som evenemangsstaden med stråket från Ullevi till Svenska Mässan och Liseberg, ett stenkast från paradgatan Avenyn.

Varvsindustrin är numera nedlagd i Göteborg, här byggs i stället attraktiva bostadsområden längs älvstranden. Göteborg är också en universitetsstad med välkända Chalmers tekniska högskola och Göteborgs Universitet samt ett blomstrande näringsliv.

Köpa, sälja eller värdera bostad i Göteborg? Kontakta våra mäklare i Göteborg! Passa också på att anmäla dig till vår kostnadsfria söktjänst Boagenten som hjälper dig att hitta ditt drömboende.

Karta

Lövskogsåsen 7

Lövskogsåsen 7

42738 Billdal

Visa i Google Maps (öppnas i nytt fönster)

Boendekalkyl

Kontakta mäklaren om du behöver hjälp att ta fram en boendekalkyl.

När du köper din bostad genom Bjurfors kan du ansöka om bolån till en förmånlig ränta hos våra banksamarbetspartners Söderberg & Partners och SEB.

Ansök om lånelöfte hos Söderberg & Partners

Ansök om lånelöfte hos SEB

Håll koll på detta objekt

Anmäl dig till visning

Bokad visning. Du kan även ringa Bjurfors Bokningscenter 031-761 79 50. Välkommen!

Bokad visning. Du kan även ringa Bjurfors Bokningscenter 031-761 79 50. Välkommen!

Kampanjbild Boneo

Liknande bostäder