-
Köpa
Köpa -
Sälja
Sälja - Hitta bostad
- Skapa bevakning
- Hitta mäklare
Tvåa på omtyckta Blåsutgatan med mycket charm och balkong i soligt läge!
Majorna, Göteborg
*Inkl värme, vatten, kabel-TV.
**Areauppgifter enligt bostadsrättsföreningen.
På Förhand ligger bostäder som av olika anledningar inte är ute till försäljning just nu men som kan komma att säljas om förutsättningarna är rätt.
En sann Majornapärla med fina brädgolv, generös takhöjd och välplanerade kvadratmeter
Välkommen till denna charmiga lägenhet från 1947 – En sann pärla med karaktär där ni får den härliga känslan av gammal tid. Lägenheten bjuder på generös takhöjd, vilket ger en luftig och öppen atmosfär, och de vackra brädgolven ihop med den holländska parketten ger rummen värme och genuinitet som är svår att hitta i nyare byggnader.
De välplanerade kvadratmetrarna är smart utnyttjade och erbjuder gott om sociala ytor för umgänge och avslappning. De stora fönstren släpper in ett härligt ljus som lyser rakt igenom hela bostaden, och det är lätt att känna sig hemma här.
Balkongen, som ligger i direkt anslutning till vardagsrummet, är både rymlig och lätt att möblera – perfekt för morgonkaffet eller en avkopplande stund med en god bok. Här kan ni skapa er egna lilla oas i staden.
En bostad där varje rum bjuder på sin egen charm, men som samtidigt erbjuder en fantastisk yta för socialt umgänge!
Varmt välkommen att höra av er till ansvarig fastighetsmäklare för mer information om objektet samt boka förhandsvisning!
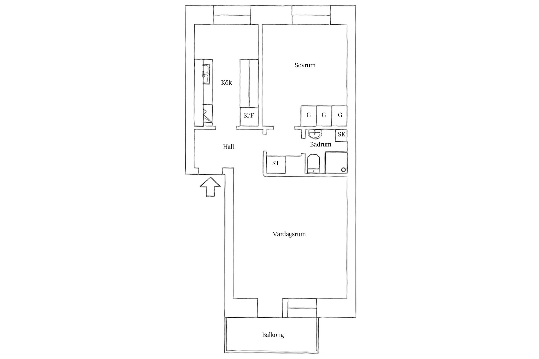
När ni stiger in möts ni av en välplanerad hall med plats för avhäning. På golvet ligger en ekparkett och väggarna är målade i gräddvit nyans.
Till vänster finner ni bostadens charmiga kök med ljusa väggar och framtaget plankgolv. Köksinredningen är vit med bänkskiva i mörkt betsat trä. Köksinredningen består av spis med ugn, fläkt, kombinerad kyl/frys samt diskmaskin. Här finns plats för matbord invid fönstret med plats för 4 personer.
Vidare in i vardagsrummet möts ni av en klassisk holländsk parkett som samsas med mörkare nyans på väggarna. Här finns gott om plats för sittgrupp med tillhörande möblemang och läshörna. Härifrån nås även bostadens balkong med plats för möblemang. Fina bänkskivor i sten.
Sovrummet är välplanerat med plats för dubbelsäng. Även här är plankgolvet framtaget och väggarna går i samma kulör som i vardagsrummet.
Badrummet är fräscht och helkaklat med WC, handfat samt dusch.



*Areauppgifter enligt bostadsrättsföreningen.
Inkl värme, vatten, kabel-TV.
Till bostaden hör ett förråd.
Bostadsrättens indirekta nettoskuldsättning har inte varit möjlig att räkna fram, eftersom relevant andelstal inte gått att få fram från föreningen eller förvaltaren.
*Betalas av köpare
BRF Gyllene Tiden, är en äkta bostadsrättsförening som bildades och förvärvade fastigheten fastigheten Göteborg Majorna 122:11 år 2004. Föreningen består av tre flerbostadshus byggda år 1947.
83 lägenheter upplåtna med bostadsrätt samt 2 hyresrätter
Byggnadernas totalyta är 4780 kvm
SBC är fastighetsförvaltare
Föreningens organisationsnummer 769609-6564
Förening är SBC godkänd (2017), vilket innebär att de lever upp till de krav deras fastighetsförvaltare SBC ställer på en välskött bostadsrättsförening. Stämpeln är en indikator på att föreningen arbetar aktivt för ett ökat värde på föreningens fastighet, en mer effektiv förvaltning och en ökad boendenytta.
Besök gärna föreningens informativa hemsida på www.gyllenetiden.se för mer information.
Föreningen höjde månadsavgiften med 30% 2023-06-01. Föreningen höjde månadsavgiften med 15% 2024-01-01. Föreningen har ingen planerad avgiftshöjning i dagsläget (kontrollerat 2024-05-23).
Föreningen följer en underhållsplan som sträcker sig mellan år 2023 och 2072. Nedan finns ett urval av underhåll som har utförts eller planeras, för mer information se årsredovisningen eller kontakta styrelsen.
Utförda renoveringar/upprustningar:
2023 Renovering av golvbrunn i bastun
2023 OVK
Spolning stående kök och toa stammar
2022-2023 10 laddstolpar för elbil
2022 Balkong/fasadtvätt
2021 Renovering/uppfräschning övernattslägenhet
2021 Nya entréportar samt nya dörrar till soprum
2021 Modernisering av hissar
2020 Ombyggnation av gamla soprum till bl.a. barnvagnsutrymme
2019 Nytt elektroniskt låssystem
2018 Spolning köksstammar
2018 Upprustning av bastulokalen
2018 Puts av fasad
2017 Upprustning av utemiljön med bl.a. nya planteringar, nyutformad lek- och grillplats, förbättrad belysning samt asfaltering.
2017 Dränering av fastigheten Blåsutgatan 11-15
2017 Nyrenoverade soprum med källsortering. Sopnedkasten stängs.
2016 Brandöversyn av samtliga gemensamma utrymmen inkl. brandsläckare och utrymmesskyltar
2016 Översyn tvättstugor
2016 Byte avloppsstam
2010-2011 Nya porttelefoner
2010-2011 Byte av två evakueringsfläktar, rensning ventilationskanaler,
balansering av ventilationssystemet
2009-2010 Byte torktumlare nedre & mittenhuset
2009-2010 Balansering av värmesystem
Spolning köksstammar
Spolning dagvattenledningar
2008-2009 Slipning golv trapphus
Byte torkaggregat mittenhuset
Renovering fritidslokal
Målning trapphus, källare & lokaler
Husvägg 17-21 omfogning samt ny sten & impregnering
Nytt skyddsstaket
Byte exteriörbelysning portar
Byte kasset takfönster i etagelägenheter
2007-2008 Byte tvättmaskiner mittenhuset
1987 Renovering av fasad, fönster, stammar och el.
Planerade renoveringar:
2024-2025 Nytt cykelförråd
2024-2025 Införande av fastighetsnät
2024-2025 Renovering av tak i samband med installation av solceller
Föreningen förfogar över 18 parkeringsplatser i området. Gästparkering finns vid infarten till Blåsutgatan. Adressen är berättigad till boendeparkering.
Föreningen är ansluten till Tele2 kabel-TV och bredband.
Föreningen har totalt tre gemensamma tvättstugor (en per hus) som inrymmer två tvättmaskiner, torktumlare, torkrum och mangel. Föreningen har också gästlägenhet, bastu och cykelrum. Det finns dessutom en lummig innergård med lekplats och grillplats.
BO I OMTYCKTA MAJORNA
Det är ingen överdrift att påstå att Majorna är en stadsdel som älskas av många. Det är en populär stadsdel som ständigt växer och utvecklas. Majorna har en öppen famn och är hem för såväl unga som medelålders, barnfamiljer, singlar, kollektiv och sambopar och så förstås de gamla majpojkarna och töserna som gärna berättar om gamla tider.
GAMLA GÅRDAR OCH INFLYTTNING
Även hos de som inte bor här har Majorna en särskild plats i hjärtat, kanske tack vare stadsdelens kulturhistoriska värde som påminner oss om arvet från sjöfartsstaden Göteborg.
De många landshövdingehusen med sina stora, sammanhängande innergårdar sätter helt klart sin prägel på Majorna. Tittar man lite närmare hittar man även en hel del andra byggnadsstilar, som funkishus från 40-talet, Vita Björns miljonprogram och stenhus från sekelskiftet längs Karl Johansgatan. Den goda blandningen av såväl folk som hus, gatstrukturer och grönområden är vad som ger området dess särpräglade charm. För har man en gång varit i Majorna blir man lätt kvar.
AVSLAPPNAT OCH DRIFTIGT
När du bor i Majorna blir du en del av en levande stadsdel. Här är det alltid är liv och rörelse, fast i ett lugnt och tillbakalutat tempo. Det finns gott om mysiga caféer och restauranger, små butiker och konstgallerier. I landshövdingehusens gatuplan springer man inte sällan på oväntade små verksamheter som drivs av driftiga och kreativa "majbor". Kulturen blomstrar särskilt kring Stigbergstorget, med klassiska skivbutiken Bengans – ett av få ställen där man fortfarande lätt kan lägga en förmiddag på att bläddra i skivbackarna. Alldeles intill ligger Sjöfartsmuseet, där man kan uppleva Göteborgs historia som sjöfartsstad och mitt emot ligger Gathenhielmska Kulturreservatet, som bjuder på en tidsresa tillbaka till det gamla Göteborg. De första som bebyggde Majorna var troligtvis finska och estniska sjömän. Det är det finska ordet för hydda, ”maja” som sägs ha bildat namnet ”Majorna”. När de första hamnarna i Göteborg anlades nedanför Stigbergets sluttningar blev Majorna den naturliga bostadsorten för hamnens arbetare och därtill krogkvarter för törstiga sjömän. Det gamla Majorna är ett stycke levande historia, som inte minst finns bevarad i gatunamn som Kommendörsgatan, Kaptensgatan, Lotsgatan, Skeppsgossegatan och många fler.
NÄRHET TILL BÅDE SLOTTSKOGEN OCH SKOLOR
Här har du fantastiska Slottsskogen inpå knuten. Grönområdet står alltid redo att bjuda dig på härliga promenader, picknick eller lek på Plikta. Runtom i Majorna finns även flera andra fina parker, grönytor och lekplatser som Söderlingska Trädgården vid Djurgårdsgatan. En omtyckt mötesplats för alla åldrar och ett toppenställe för att ta en kopp kaffe i vårsolen.
I området finns flera förskolor och grundskolor samt att i centrum hittar du gymnasieskolor och Göteborgs Universitet.
Köpa, sälja eller värdera bostad i Majorna? Kontakta våra mäklare i Göteborg! Passa också på att anmäla dig till vår kostnadsfria söktjänst Boagenten som hjälper dig att hitta ditt drömboende.
Kontakta mäklaren om du behöver hjälp att ta fram en boendekalkyl.
När du köper din bostad genom Bjurfors kan du ansöka om bolån till en förmånlig ränta hos våra banksamarbetspartners Söderberg & Partners och SEB.
Ansvarig mäklare