-
Köpa
Köpa -
Sälja
Sälja - Hitta bostad
- Skapa bevakning
- Hitta mäklare
Hem i centrala men lugna Knislinge med en stor grönskande trädgård!
Östra Göinge
*Areauppgifter enligt taxeringsinformationen
På Förhand ligger bostäder som av olika anledningar inte är ute till försäljning just nu men som kan komma att säljas om förutsättningarna är rätt.
Drömmer du om ett hem där allt redan är klart att flytta in i? Med en stor, grönskande trädgård och gott om utrymme för både garage och förråd? Då kan detta vara precis det du söker
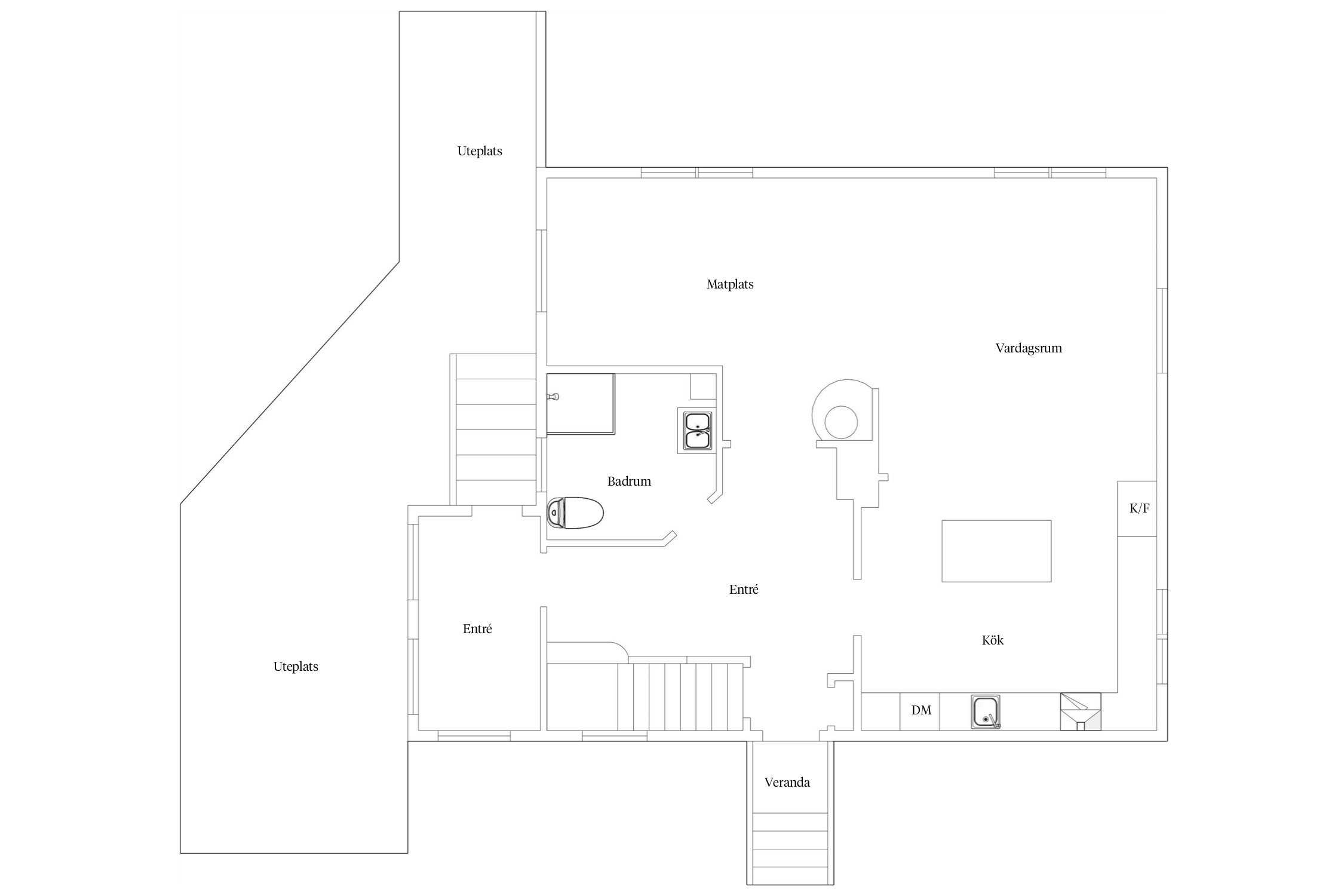
I centrala men lugna Knislinge finns nu chansen att förvärva ett välskött och smakfullt renoverat 1½-planshus med källare. Huset byggdes 1925, men har genomgått en omfattande och varsam renovering som gör att det idag upplevs både modernt och mycket välhållet.
Bostaden erbjuder cirka 125 kvm boyta med en genomtänkt planlösning som ger en rymlig känsla. Entréplanet välkomnar med en praktisk hall, ett helkaklat badrum med dusch och dubbelhandfat samt ett stilrent HTH-kök med generösa arbetsytor och plats för sociala stunder. Vardagsrummet ligger i vinkel, har fint ljusinsläpp och en mysig kamin som skapar en naturlig samlingspunkt.
På ovanvåningen finns ytterligare ett badrum med dusch, tre ljusa sovrum samt ett allrum som kan användas som tv-rum, arbetsplats eller extra sovrum. De charmiga snedtaken ger huset karaktär och en hemtrevlig känsla. I källaren finns tvättstuga och gott om förvaringsutrymmen vilket både är praktiskt och välordnat.
Även utomhusmiljön har uppdaterats med bland annat ny gräsmatta, förråd, stenläggning och en inbjudande uppfart, där det finns gott om plats att vidareutveckla tomten efter egna önskemål.
Detta är ett hem för dig som vill ha ett snyggt och inflyttningsklart boende utan större renoveringsbehov, men med möjlighet att sätta din egen prägel över tid.
Välkommen att kontakta ansvarig mäklare för mer information samt bokning av visning!



Smedmästaren 22
*Areauppgifter enligt taxeringsinformationen
Kommunalt vatten, Kommunalt avlopp.
Tomtindelning (1951-07-27)
Samfällighet: Östra göinge knislinge s:16
Skattetal: mantal 1/640
Det finns 11 st pantbrev uttagna om sammanlagt 1 105 000 kr
Vill du köpa, sälja eller värdera bostad i Skåne? Bjurfors är marknadsledande som mäklare i Skåne – och har branschens mest engagerade fastighetsmäklare. Så oavsett vilka frågor du har kring din nuvarande bostad, din lokala bostadsmarknad eller din framtida drömbostad kan du få goda råd av oss. Kontakta våra mäklare i Skåne redan idag!
Passa också på att anmäla dig till vår kostnadsfria söktjänst Boagenten som hjälper dig att hitta ditt drömboende. Du kan även filtrera fram din nya bostad genom att använda vår söksida.
Kontakta mäklaren om du behöver hjälp att ta fram en boendekalkyl.
När du köper din bostad genom Bjurfors kan du ansöka om bolån till en förmånlig ränta hos våra banksamarbetspartners Söderberg & Partners och SEB.