-
Köpa
Köpa -
Sälja
Sälja - Hitta bostad
- Skapa bevakning
- Hitta mäklare
Ladugårdsmarken, Lund
*Areauppgifter enligt taxeringsinformationen
Bjurfors Beyond presenterar en arkitektritad villa med generös boyta, uthyrningsbostad och spektakulärt fri utsikt. Stenhus på unikt läge!
Öppna åkermarker och gyllene sädesfält. Slingrande grusvägar och mäktiga trädalléer. Vidsträckta vyer som sträcker sig hela vägen till Danmark. I ett lantligt landskap bara fyra kilometer från Lunds centrum möts kontrasterna i harmoni. Humlesurr och folkvimmel. Traditionellt och modernistiskt. Odlingslandskap och kullerstensgränder. Här levs drömmen om landet ut till fullo utan att kompromissa med närheten till stadspulsen.
Den vita tvåplansvillan om 230 kvm byggdes 2013 av MBAS stenhus utifrån Lundaarkitekten Olle Roséns ritningar. Formspråket är påtagligt modernt med rena, räta linjer och generös fönstersättning men bär också fina influenser från det förgångna. Den slätputsade fasaden, sadeltaket med röda takpannor och fotfönsterna som löper längs framsidan flörtar tydligt med äldre skånegårdar som är vanliga i dessa trakter. Interiört är det dock helt och hållet vår tid som återspeglas med volym, öppenhet och ljus som huvudkomponenter. Materialen är enhetliga, liksom färgskalan som främst går i dämpade toner av vitt och grått. Golvytorna i entréplan är genomgående av klinker och det övre planet av vitlaserat trä. Samtliga väggar är vita. En grund som gör det enkelt att addera andra accenter efter tycke och smak.
Även planlösningen matchar nutida behov med väl tilltagna sällskapsytor och ett socialt kök som gör det enkelt att umgås många, både till vardags och fest. Bortsett från ett tvättrum, badrum och förråd så är hela entréplanet ägnat åt sociala ytor. Sällskapsrummet breder ut sig likt ett L över tre av husets sidor med panoramautsikt och ljusinsläpp från tre väderstreck. Ett flertal fönsterdörrar i rummet leder raka direkt ut till altandäcket som omfamnar hela huskroppen. Köket har en något indragen placering med full utblick över rummet. En trappa upp finns ytterligare ett allrum att umgås i, ett badrum och tre sovrum, varav det ena är delbart och det andra har walk in closet. Hela detta våningsplan präglas av ett spektakulärt ljusspel från skiftande fönstersättningar och franska balkonger. Utöver bostadshuset finns även en fristående byggnad med dubbelgarage i ena delen och en bostad om 44 kvm som kan generera bra hyresintäkter. Lägenheten är i två plan med ett kök och badrum med tvättfaciliteter på entréplan och ett stort sovrum med anslutande vindsutrymme på övre plan.
Omgivningarna talar för sig själv men även i direkt anslutning till huset njuter ni av en sagolik trädgårdsmiljö med stora gräsytor, soldränkta uteplatser och skuggiga vrår under resliga trädkronor. Att stå här och laga mat under bar himmel medan ni ser ut över solen som närmar sig horisonten en ljummen sommarkväll är onekligen svårslaget.
VÄLKOMMEN
En cykelfärd på en kvart eller några minuter med bil. Längre än så tar det inte att färdas från denna lantliga plats till Lunds livliga gator med en uppsjö av restauranger och butiker. Ännu närmre är det till Kunskapsparken som bjuder på spännande miljöer med allt från lekplatser och utegym till motionsslingor och ridstigar. I området planeras både skola och ridhus. Med andra ord är Ladugårdsmarken ett avskilt området men också bekvämt nära mycket.
Det känns nästan overkligt när asfalt och höghus snabbt skiftar till ett lantligt landskap av smala grusvägar, åkermarker, fält och böljande hedar vid Ladugårdsmarken. Efter några hundra meter svänger ni av på en mindre grusväg som leder fram till en gårdsplan med parkeringsplatser som ramas in av träddungar. Till höger om gårdsplanen skymtar annexet med svart stående träpanel som inhyser både dubbelgarage och en uthyrningsbostad.
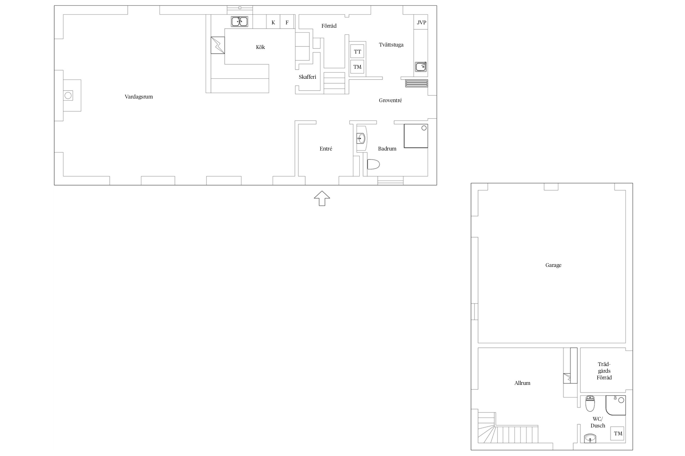
BOSTADSHUS
ENTRÉPLAN
HALL, BADRUM 1 & TVÄTTRUM
En grå pardörr med flera mindre fönsterrutor välkomnar in till huvudentrén och en hall med vita putsade väggar och ett grått klinkergolv som fortsätter genom hela våningsplanet. Rakt fram reser sig det inbyggda trapphuset med vitputsade väggar och smäckra steg av vitlaserat trä. Mot höger fortsätter hallen vidare in mot en funktionell avdelning med rum på vardera sidan. Ett rymligt tvättrum till vänster med fönsterdörrar till trädgården och ett anslutande förråd. Till höger ett ljust badrum med grått klinkergolv, vitt väggkakel och fönster mot grönskan. Rummet är inrett med vägghängt wc, dusch bakom glasbetongvägg och tvättställskommod i ljust trä.
SÄLLSKAPSRUM & KÖK
Till vänster om entrén är det en förbluffande rumsvolym som möter er, tillsammans med ett rikt ljusinsläpp från flera fönster och dörrar som omsluter sällskapsrummet från tre håll. Givetvis medföljer också en spektakulär panoramautsikt över nejden som vandrar vidare hela vägen mot Danmark. Här blir det tydligt hur fritt och ostört läget är samtidigt som det är svårt att förstå hur nära det är till stan. Rummets ofantliga yta gör att det skapas naturliga rum i rummet. En matplats till vänster framför de öppna markerna, en soffhörna och läshörna på vardera sida om den centrala öppna spisen. Köket som står i centrum lite längre bak i rummet har full överblick åt alla håll och är lagom avskilt via halvväggen som även fungerar som en avställningsplats och ”bar” för gäster. Köksinredningen är u-formad med stilrena vita fronter med infällda grepp, rostfri diskbänk, bänkskiva av mahogny och väggytor av grå mosaikkakel och plåt. Samtliga vitvaror är inbyggda och rostfria. I anslutning till köket finns ett rymligt skafferi.
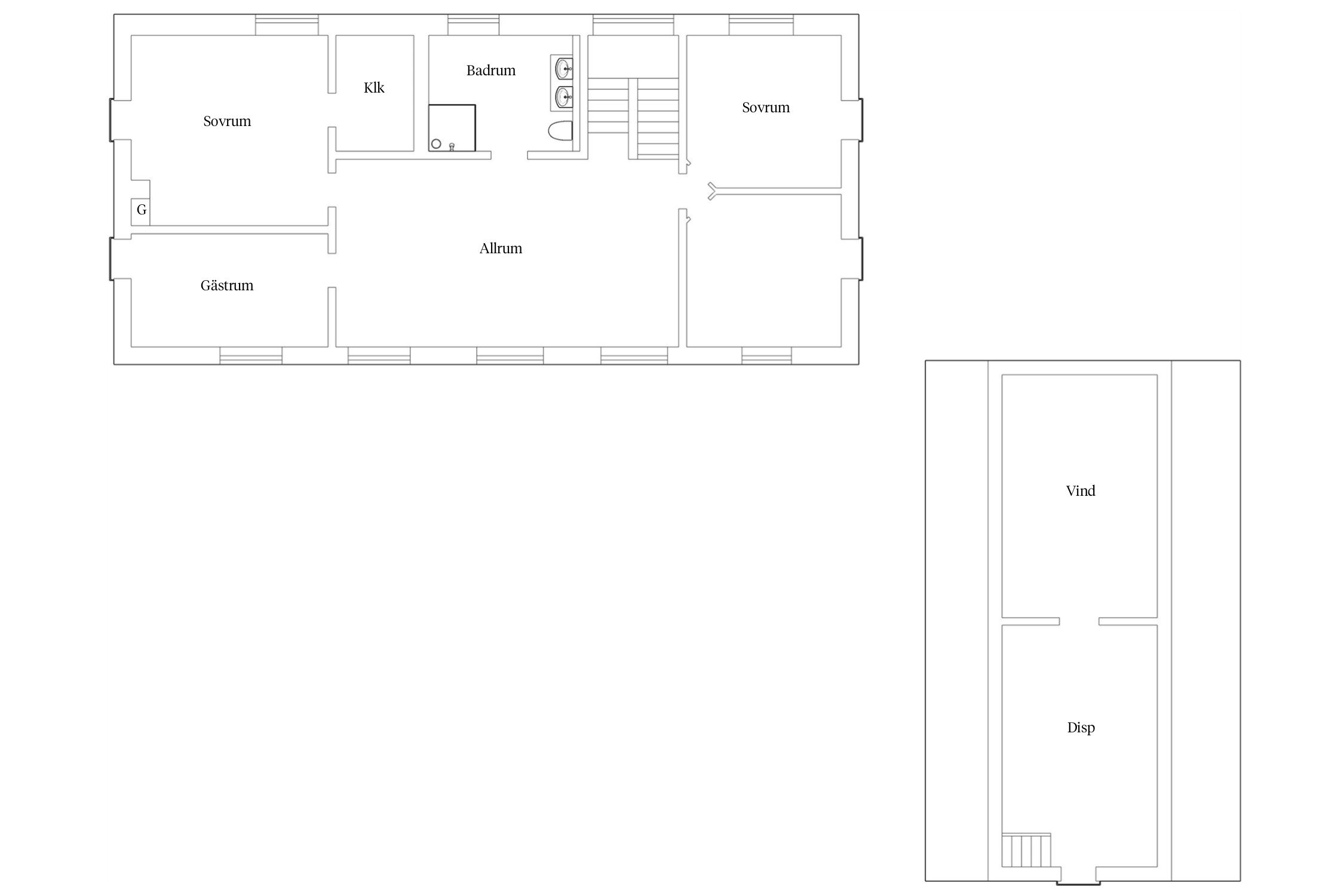
ÖVRE PLAN
ALLRUM
Den smäckra trätrappan tar er vidare upp till övre plan där en avsats genast fångar en imponerande utsikten över det lantliga åkerlandskapet genom ett fotfönster. Efter några trappsteg kommer ni upp till allrummet som andas luft och rymd. Även här spelar fotfönsterna en viktig roll, liksom de omfattande takfönsterna som får rummet att bada i ljus. På golvet löper ett vitlaserat trägolv som fortsätter vidare in i alla rum på detta plan. Rummets yta gör det möjligt att ha flera avdelningar för såväl arbete, hobby och umgänge.
SOVRUM 1–3 alternativt 4
I anslutning till allrummet finns tre sovrum, varav det ena är delbart och kan ge ett fjärde. Detta stora rum är placerat till vänster om allrummet och har utsikt åt tre väderstreck och två franska balkonger. På andra sidan ligger ett gästrum och ett rymligt gavelsovrum med anslutande walk in closet och fransk balkong.
BADRUM 2
Badrummet är centralt placerat på våningsplanet och inrett i samma stil som det nedre med vitt väggkakel, grått klinkergolv och dusch bakom glasbetongvägg. Ljuset strömmar vackert in genom både fot-och takfönster.
ANNEX
Bakom huset nås dubbelgaraget som är inhyst i annexet. Den uthyrningsbara lägenheten i samma byggnad nås via en privat entré bakom en häck till höger om gårdsplanen på framsidan. Till vänster om entrén finns ett altandäck. Via en grå dörr med flera fönsterrutor välkomnas ni in i ett modernt kök med med vita luckor, träbänkskiva och mosaikbeklädd vägg ovanför. Till höger finns ett helkaklat badrum i grått och vitt med dusch, wc, tvättställskommod, tvättmaskin och torktumlare. En svängd trätrappa tar er upp till ett stort och härligt rum med möjlighet att möblera utifrån tycke och smak. Här finns också en fransk balkong. I anslutning finns en dörr till ett vindsutrymme.
Extra kontaktperson



Entreplan
Ovanvåning
Ladugårdsmarken 5:10
*Areauppgifter enligt taxeringsinformationen
2015 Altanbygge
Enskilt vatten, Enskilt avlopp. Egen borrad vattenbrunn 65m. Infiltrationsbädd
Tomtarea 3 828 m² (friköpt).
Last: Officialservitut Väg, 1281K-21006.1
Förmån: Avtalsservitut Jordvärme,Spillvattenledning, D201500113678:1.1
Förmån: Officialservitut Väg, 1281K-21006.2
IP-Only
Uppvärmningskostnaden ingår i elkostnaden. I samfälligheten ingår vägunderhåll.
Det finns 5 st pantbrev uttagna om sammanlagt 5 935 000 kr
I Norra Lund är närheten till naturen i kombination med spännande arkitektur högst bidragande till områdets popularitet. Här finner du varierande bebyggelse där alla hus har sin egen identitet.
I Norra Lund är närheten till naturen i kombination med spännande arkitektur högst bidragande till områdets popularitet.
I stadsdelen Norra Fäladen i Lund ligger bostadsområdet Annehem, ett av stadens nyare områden som växer snabbt. Det är ett renodlat villaområde där den äldre delen mestadels består av trähusbebyggelse, vilket är ganska unikt för Lund. Området, som tidigare främst var för arbetarebostäder, har på senare tid blivit väldigt populärt bland akademiker. I Annehem har du alltid nära till naturen och till rekreationsområdet Sankt Hans backar.
I trakten ligger även Kungsmarken, det enda sammanhängande området i södra Sverige där markanvändningen varit oförändrad under tusentals år. Här finns ett naturreservat med minnen från forna tiders jordbruk. Till största delen består det av en golfbana kombinerat med övrig öppen mark, utom den norra delen som täcks av lövskog. Här har man hittat lämningar från tidig järnålder och här finns också flera olika fågelarter och växter som lever i symbios på slätten.
Norra Fäladen, strax norr om trafikleden Norra ringen, byggdes till stor del i slutet av 1960-talet. Här bor en stor andel av studenterna vid Lunds universitet i bostadsområdena Delphi, Kämnärsrätten och Klosterängen. Det är i den västra delen av området man finner Sankt Hans backar. Högstadieskolan Fäladsgården har genom sin arkitektur och sina verksamheter gjort området till något unikt. I mitten av området ligger Fäladstorget med bland annat matbutiker och Sankt Hans kyrka.
Det färgstarka området fredslyckan är även det ett mycket populärt område. Här bor du nära såväl vacker natur och grönska som stadsliv och all vardagsservice du kan behöva. Hela området byggdes utifrån tankar på såväl variation som helhet, vilket du kan se på områdets unika karaktär och tidlösa arkitektur.
Vill du köpa, sälja eller värdera bostad på Ladugårdsmarken? Kontakta Bjurfors mäklare i Lund! Passa också på att anmäla dig till vår kostnadsfria söktjänst Boagenten som hjälper dig att hitta ditt drömboende.
Vi har ett nära partnerskap med SEB Private Banking för att ge dig det bästa affärsläget. Som Private Bankingkund hos SEB får du ett individuellt erbjudande och en personlig kontakt som ser till helheten utifrån dina finansiella behov.
Kontakta mäklaren om du behöver hjälp med en boendekalkyl. När du köper din bostad genom Bjurfors kan du ansöka om bolån till en förmånlig ränta hos vår samarbetspartner SEB.
Med en bred lokal närvaro i Sverige, ett internationellt nätverk, samt ett eget register med aktiva intressenter och investerare – har vi förutsättningar att matcha rätt bostad med rätt köpare.
SE ALLA BOSTÄDER BJURFORS BEYOND